Условие:
Модуль упругости E=2·105 МПа.
Допускаемое напряжение σadm=160 МПа.
Требуется:
вычислить продольные усилия (Ni , кН) и нормальные напряжения (σi , МПа) во всех характерных сечениях стержня, абсолютное (Δli , Δlобщ, мм) и относительное (ε, %) перемещения; в соответствии с условиями прочности подобрать размеры поперечных сечений конструкции A1, A2, A3, A4: стальной стержень квадратного или круглого сечения (в таблицах стального сортамента: см. Приложения в УП или МУ).
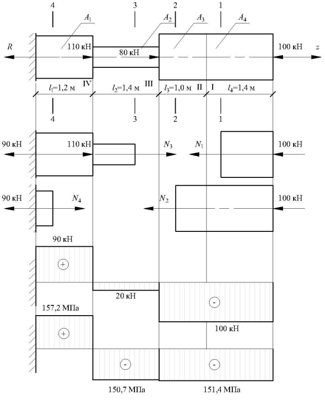
Дано: l1= 1.2 м, l2=1.4м, F1=110 кН, F2=80 кН, l3=1.0 м, F3=100 кН, l4=1.4 м.

2. Вычертить схему стержня с приложенными силами, соблюдая масштаб размеров по длине стержня. Нанести числовые значения размеров и сил на расчетной схеме.
3. Отобразить реакцию опоры и вычислить ее величину; нанести на расчетную схему полученное значение и направление вектора действия реакции.
4. Установить число участков. Под участком понимают часть стержня, в пределах которой не изменяются ни продольная сила, ни площадь поперечного сечения.
5. На каждом участке перпендикулярно продольной оси стержня нанести сечения. Пронумеровать эти сечения арабскими цифрами, например, 1–1, 2–2 и т. д.
6. Для каждого участка вычислить величину продольной силы N1, N2, Ni , …, Nn с учетом знака. Продольная растягивающая сила имеет знак «+», а продольная сжимающая сила – знак «–».
7. Построить эпюру продольных сил N, то есть построить график изменения величины продольного усилия N в сечениях по длине стержня. На эпюре продольных сил следует указать числовые значения всех характерных ординат, указать символами на графике растянутые и сжатые зоны («+» и «-»).
8. В соответствии с условиями прочности подобрать размеры поперечных сечений конструкции A1, A2, A3, A4 : стальной стержень квадратного или круглого сечения (в таблицах стального сортамента: см. Приложения в УП или МУ). Подобрать размеры поперечных сечений конструкции A1, A2:

9. Вычислить величины нормальных напряжений σi для каждого участка σ1, σ2, σi , …, σn по поперечным сечениям. Растягивающие напряжения имеют знак «+», а сжимающие – знак «–». Построить графики нормальных напряжений. На эпюре следует указать числовые значения всех характерных ординат, указать символами на графике растянутые и сжатые зоны («+» и «-»).
10. Вычислить величину продольной деформации для каждого участка Δl1, Δl2, Δli , …, Δln и общую для всего стержня Δlобщ. Деформация удлинения имеет знак «+», а укорочения знак «–».
11. Вычислить относительную продольную деформацию стержня ε.


